在电站锅炉水除灰管道系统上安装铸石耐磨耐腐蚀球阀作为启闭装置专用调节阀。该产品在使用过程中还存在一些问题,如阀座密封与球芯接触面积大致使驱运力矩增大,阀门开关不够灵活上下阀杆设计过大,使用的原材料利用率过低,阀座结构不合理及上密封处有渗水和漏水现象发生。为了解决这些问题,改进了耐磨耐腐蚀球阀结构形式及材料。
一、结构改进
1、阀体

图1 铸造阀体

图2 铆焊阀体
过去的阀体多为铸造件(见图1),铸造过程中存在着不确定因素,如气孔、砂眼、疏松、夹渣、缩孔、裂纹等,影响阀门整体机械性能。为了向高参数及高性能方向发展,充分发挥铆焊加工能力特点,参照国内外同类产品,采用混合离散变量的最优化设计方法及韧性好的钢板材料焊接而成,见图2。与铸造件比较,钢板焊接的阀体壁厚可以减薄,且强度高、韧性好,质量比铸造的阀体可减轻约1/6。
2、阀座

图3 阀座密封圈
阀座密封结构是球阀密封性能的关键,直接影响球阀的使用寿命。原阀座密封圈结构(见图3(a))由于阀座密封圈角度太大,与球芯接触面积大,抱球芯抱的紧,产生的力矩相对就大。以DN400的球芯阀座为例,质量为3kg,结构改进后的阀座密封圈(见图3(b))与球芯为线接触,接触面积小,使得阀门开启灵活,且阀座密封圈质量降低了1/3左右。
3、球芯
原球芯直径设计过大,使用的阀体中腔过大,造成材料浪费,利用率低。原球芯(见图4(a))质量为380kg,改进后的球芯(见图4(b))质量为285kg,且改进后的球芯强度、密封位置都能得到保证。改进后,球芯充填层加大,使用得耐磨层材料玄武岩铸石粘贴更加牢固,不会发生耐磨材料的脱落现象的发生。

图4 球芯
根据文献[1],通孔球阀内径d=DN,球体径为R=08DN,球体面距
,改进后的球芯完全满足文献[1]的要求。D为球阀外径。
4、上阀杆
原DN400阀杆是由2Cr13150棒料车制而成,由于上阀杆的O型密封圈与DF复合轴承的尺寸一样,而DF复合轴承是开口的,装配起来很不方便,且维修起来也很麻烦。为此,对上阀杆做了改进,见图5。改进后在阀杆与阀体密封处车一个台阶,与DF复合轴承尺寸不一致,各部台阶处有圆角,避免了啃O型密封圈现象的发生。经过重新对阀杆强度计算,阀杆直径可以比原设计减少20%左右。

图5 上阀杆
5、下阀杆
原下阀杆由下轴和法兰组成,首先车好下轴和法兰止口,后进行焊接,再退火处理。按图车好各部位,装配时调整很不方便,为此对下阀杆进行如下改进,见图6。把下阀杆由部件改为两个单独的零件,这样可以省去退火处理工序,而且加工起来也很方便,且成本降低不少。

图6 下阀杆
6、球阀阀座
原阀座与球芯是固定不变的,现改为阀座是可调试结构(见图7),其O型密封圈压缩量可按如下计算:固定密封时,预压缩量为025d;滑动密封时,预压缩量为015d;固定球阀密封时,预压缩量为015d。

图7 阀盖与阀体间密封
二、结构改进的主要技术参数及特点
1、主要技术参数
公称压力PN=25MPa;公称通径DN=400mm;适用温度t=-40~100.适用介质为渣水、矿浆、水、石油。
2、特点
结构简单、体积小、质量轻。流体阻力小、全通道、便于清扫。开关轻便、灵活、维修方便、阀座可调。球阀通道及球芯内衬玄武岩铸石耐磨材料起到耐磨防腐的作用。铸石材料有极高的耐磨、耐腐蚀性能。表1为铸石物理性能表,表2为铸石化学性能表。
表1 铸石物理性能

表2 铸石化学性能 %

在相同条件下,几种材料的磨损量如图8所示。

图8 几种材料的磨损量
三、设计计算
1、阀体壁厚
球阀剖面图如图9所示。阀体的计算厚度SB‘ 为

式中:P1为计算压力,MPa;Dn为计算内径,mm;[
]为许用拉应力,MPa;C为裕量,包括铸造偏差工艺性腐蚀因素。

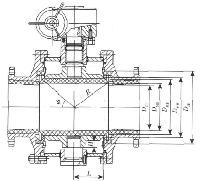
图9 球阀剖面图
当阀体实际厚度SB≥SB!时,强度合格。
2、密封比压
阀前密封比压qi为 
阀后密封比压q0为

验算合格条件为qMN<q<[q]
式中:q为密封面上必需的比压,MPa;[q]为密封面许用比压,MPa;为球体的密封圈接触点与通道轴法向夹角,(o);p2为设计压力,MPa;DJH、DMN、DMW、R、H和DCH如图9所示;h为阀门最外口的直径;qMN为球阀最小预警比压。
3、阀杆强度
阀杆力矩公式为
MF=MQG+MFT+MZC
式中:MF为阀杆力矩,N.mm;MQG为球体与阀座密封面间的摩擦力矩,N.mm;MFT为填料与阀杆阀的摩擦力矩;MZC为轴承产生的摩擦力矩,N.mm。
MQG=MQG1+MQG2
式中:MQG1为阀座对球体的预紧力产生的摩擦力矩,N.mm;MQG2为由介质工作压力产生的摩擦力矩。

式中:qm为球体最小预紧比压,MPa;fm为球体与密封面摩擦系数(取fm=0.05~0.1);DQJ为轴径,设计给定,mm;fz为轴承摩擦系数,取0.05~0.1;p3为介质压力。
阀杆端头扭转剪切应力(见图10)τ N为

式中
为I-I断面抗转矩断面系数,mm3
对于正方形断面[1]


图10 阀杆端部
四、结论
改进后的耐磨耐腐蚀球阀,消除了颗粒对阀门的磨粒磨损及腐蚀问题,改善了球阀密封质量,阀门开关灵活,减轻了操作人员的劳动强度,提高了劳动效率和工作质量。实际运行证明:开关运行可靠,经久耐用、使用寿命长,是目前电厂、矿山除灰、排渣系统较为理想的一种控制阀门。
